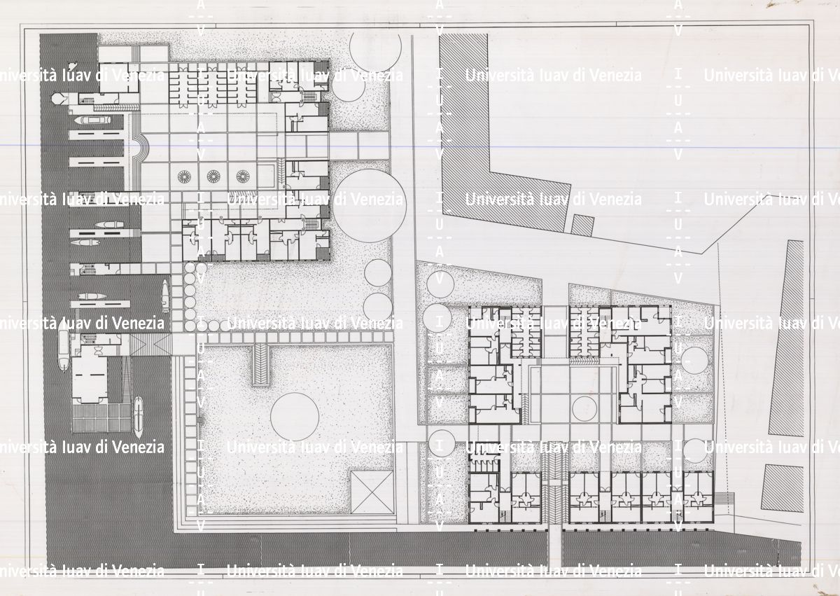
Tavole numerate 3-10, due senza numero, febbraio 1984, con intestazione "Comune di Venezia, programma straordinario di edilizia abitativa articolo 2 legge 94/1982 - per un intervento di edilizia residenziale pubblica da eseguirsi in Venezia centro storico area ex Fregnan", planimetria generale, piante piano terra, primo e secondo piano, pianta copertura, prospetti, dettaglio facciata, dettagli cabina di servizio, passerelle e riva, planimetrie trasferimento e sostituzione della nuova alberatura, radex, 10 disegni.
Variante gennaio 1986/febbraio 1988, 1 disegno.
Tavole numerate 1-9, una senza numero, 27 dicembre 1989 con intestazione "Ex Fregnan-Giudecca intervento abitativo 2° lotto, n. 38 alloggi, consegna progetto di massima", planimetria generale, piante piano terra, primo e secondo piano, copertura, prospetti, sezioni, profilo altimetrico e vista prospettica. Redatto da: Luigi Todesco, Studio Associati Pauletto, Furlan, Galli, 11 disegni.
Tavole numerate 34A e 35A, 31 maggio 1994 con intestazione "Edilvenezia spa, Progetto di intervento abitativo 2° lotto nell'area ex-Fregnan alla Giudecca", dettagli scala duplex e scala condominiale. Collaboratori: Carlo Cappai, Maria Manzin, Giuseppe Postet, Maria Alessandra Segantini. Progetto strutture, impianti, computi metrici, preventivi e capitolati: Walter Gobbetto, Fausto Frezza, Celio Fullin. Indicate altre responsabilità, 2 disegni.
Piante, 14 disegni. Con 1 copia.
Studi, prospetti, sezioni, scala, 12 disegni e 2 fotocopie A3.
Studi pervenuti con l'annotazione "Concorso-appalto 4 aree a Polese", 47 disegni, 2 tavole di cartografia di base, 1 c.