Archivio Progetti

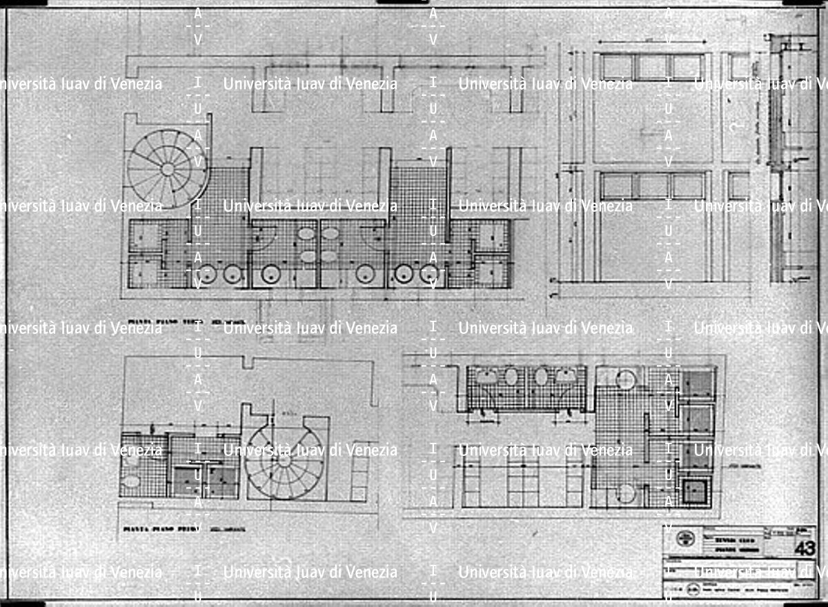
Tennis club : piante servizi

Descrizione immagine
International Image Interoperability Framework Vedi
Identificativo per l'Unità documentaria IUAV UD 446600
Livello di descrizione unità documentaria
Tipologia documentaria Disegno
Titolo Tennis club : piante servizi
Data 1 febbraio 1980
Descrizione fisica
Tracciati specifici Grafica
Grafica
Materia
carta da lucido
Tecnica inchiostro di china , matita
Scala 1:20
Consistenza
Indicazione specifica tavola
Quantità 1
Altezza 81
Larghezza 110
Unità di misura cm.
Tecnica inchiostro di china e matita su carta da lucido