Archivio Progetti

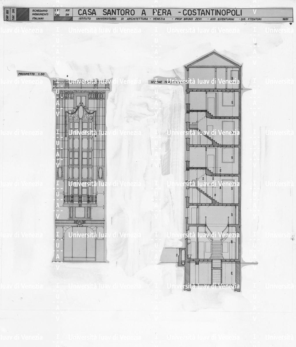
Costantinopoli : casa Santoro a Pera

Descrizione immagine
International Image Interoperability Framework Vedi
Identificativo per l'Unità archivistica IUAV UA 267798
Livello di descrizione unità archivistica
Tipologia documentaria Materiale fotografico
Titolo Costantinopoli : casa Santoro a Pera
Data Anno acc. 1951
Descrizione fisica
Tracciati specifici Fotografia
Consistenza
Tipologia negativi su vetro
Quantità 3
Altezza 9
Larghezza 12
Unità di misura cm.
Tecnica gelatina bromuro d'argento , b/n