Archivio Progetti

Camera dei deputati

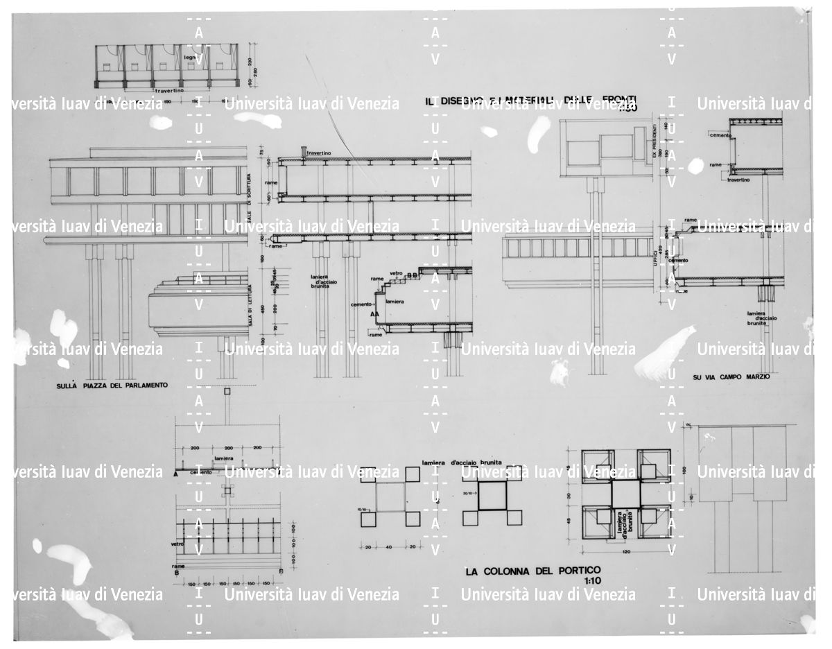
Descrizione immagine
International Image Interoperability Framework Vedi
Identificativo per l'Unità archivistica IUAV UA 489151
Livello di descrizione unità archivistica
Tipologia documentaria Materiale fotografico
Titolo Camera dei deputati
Data 1967
Descrizione fisica
Tracciati specifici Fotografia
Consistenza
Tipologia negativi su vetro
Quantità 36
Altezza 13
Larghezza 18
Unità di misura cm.
Tecnica b/n
Tipologia negativi su vetro
Quantità 11
Altezza 9
Larghezza 12
Unità di misura cm.
Tecnica b/n
Tipologia negativi
Quantità 3
Altezza 9
Larghezza 12
Unità di misura cm.
Tecnica b/n