Archivio Progetti

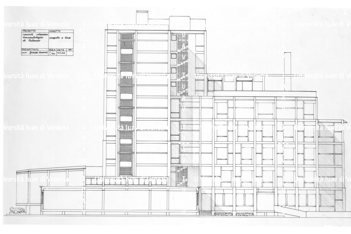
Ospedale ortopedico Palermo

Descrizione immagine
International Image Interoperability Framework Vedi
Identificativo per l'Unità archivistica IUAV UA 489099
Livello di descrizione unità archivistica
Tipologia documentaria Materiale fotografico
Titolo Ospedale ortopedico Palermo
Data 1953
Descrizione fisica
Tracciati specifici Fotografia
Consistenza
Tipologia negativi su vetro
Quantità 7
Altezza 13
Larghezza 18
Unità di misura cm.
Tecnica b/n