Archivio Progetti

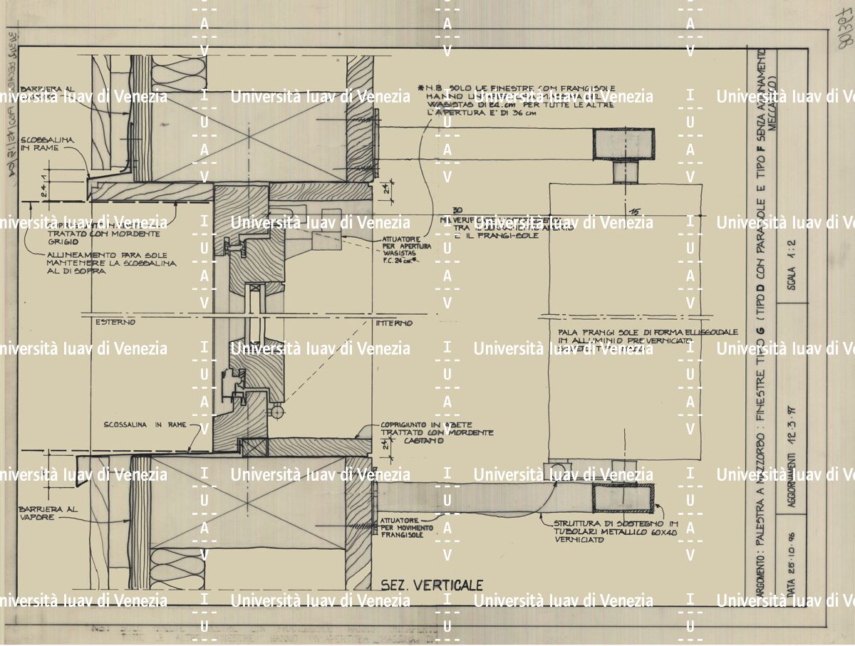
[Palestra : dettagli]

Descrizione immagine
International Image Interoperability Framework Vedi
Identificativo per l'Unità archivistica IUAV UA 462471
Livello di descrizione sottounità
Tipologia documentaria Tavole o disegni in serie
Titolo [Palestra : dettagli]
Data Settembre 1996-ottobre 1997
Descrizione fisica
Tracciati specifici Grafica
Grafica
Materia
Carta
Carta da lucido
Tecnica Inchiostro di china , Pennarello , Matita , Pastello , Rtino
Scala 1:20
Consistenza
Tipologia tavole
Quantità 25
Altezza 46
Larghezza 33
Unità di misura cm.
Tecnica inchiostro di china , pennarello , matita e retini su carta e carta da lucido