Archivio Progetti

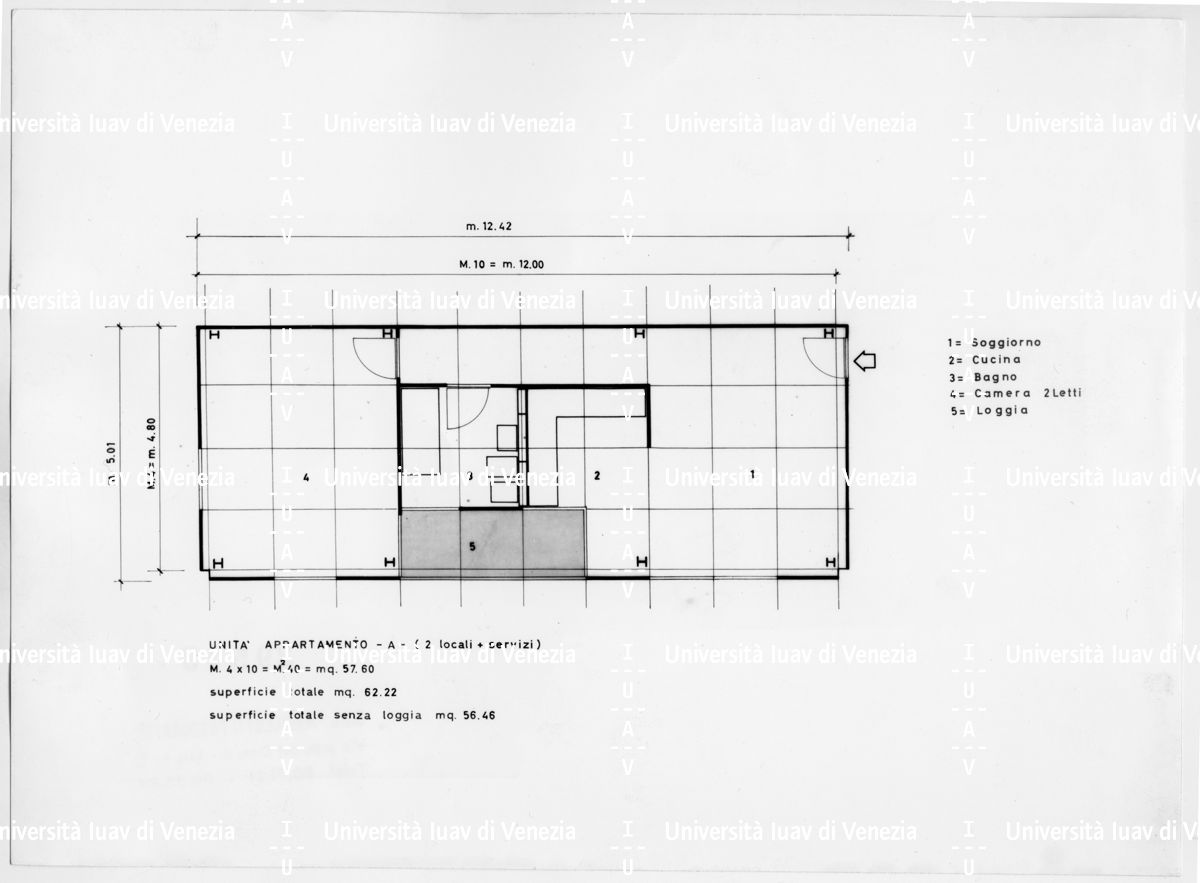
[Disegni del progetto di un'unità abitativa]

Descrizione immagine
International Image Interoperability Framework Vedi
Identificativo per l'Unità archivistica IUAV UA 217348
Livello di descrizione unità archivistica
Tipologia documentaria Materiale fotografico
Titolo [Disegni del progetto di un'unità abitativa]
Data [s.d.]
Descrizione fisica
Tracciati specifici Fotografia
Consistenza
Tipologia fotografie
Quantità 2
Altezza 18
Larghezza 24
Unità di misura cm.
Tecnica b/n